Модульный дом Эко Нова — компактный современный вариант для загородной жизни полного цикла (58² общая площадь).
Планировка и размеры
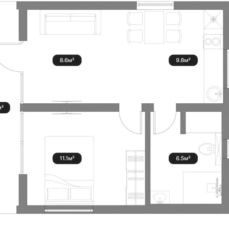
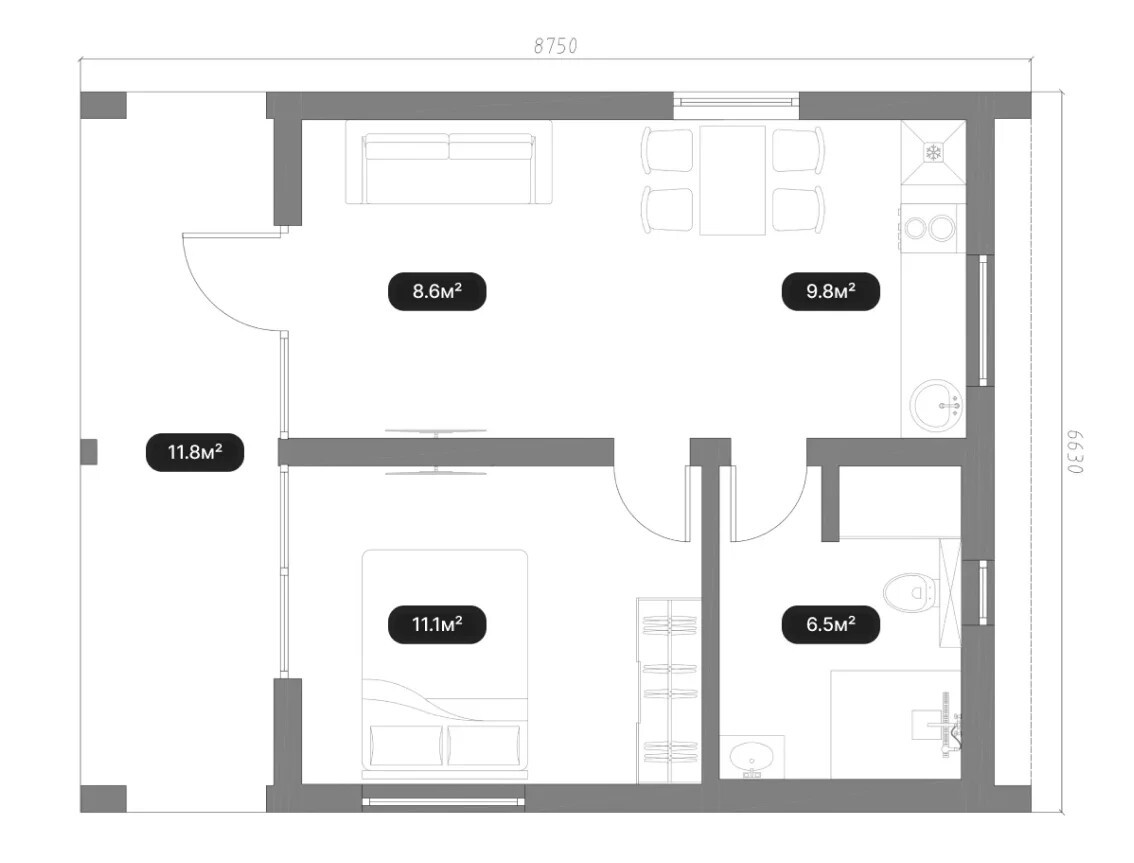
Зонирован на кухню гостиная (18,4 м²), 2спальни по (11,1 м²), санузел (6,5 м²) и террасу (11,8 м²). Общие габариты: 6,63x8,75 м, высота — удобная для круглогодичного проживания. Жилая зона 36 м2, Терраса 11,8 м2
Преимущества
- Функциональность. Эргономичная кухня-гостиная, просторная спальня с двуспальной кроватью, компактный санузел с душем и WC.
- Комфорт. Большая терраса для отдыха, интегрированные коммуникации — готов к заселению за 1 неделю.
Идеален для семьи 2–3 чел. или дачи.
Включено в стоимость дома
Каждый дом поставляется в полностью готовом виде, с чистовой отделкой. Вам останется только расставить мебель и можно жить.
Экстерьер
Интерьер
Коммуникации, электрика, сантехника
Отопление
Контакты
Одел продаж Москва
- ЭкоМодХаус, г. Москва, Большой Каретный переулок Дом 20 строение 2 Переговорная, Офис 513
- +7-962-684-84-74
- sk.euroservice@mail.ru
Производство
- ЭкоМодХаус, Костромская обл. г.Буй, ул. Крайняя д.5, Офис 513
- +79626848474
- sk.euroservice@mail.ru
Что мы продаем
ЭкоМодХаус, г. Москва, Большой Каретный переулок Дом 20 строение 2 Переговорная











