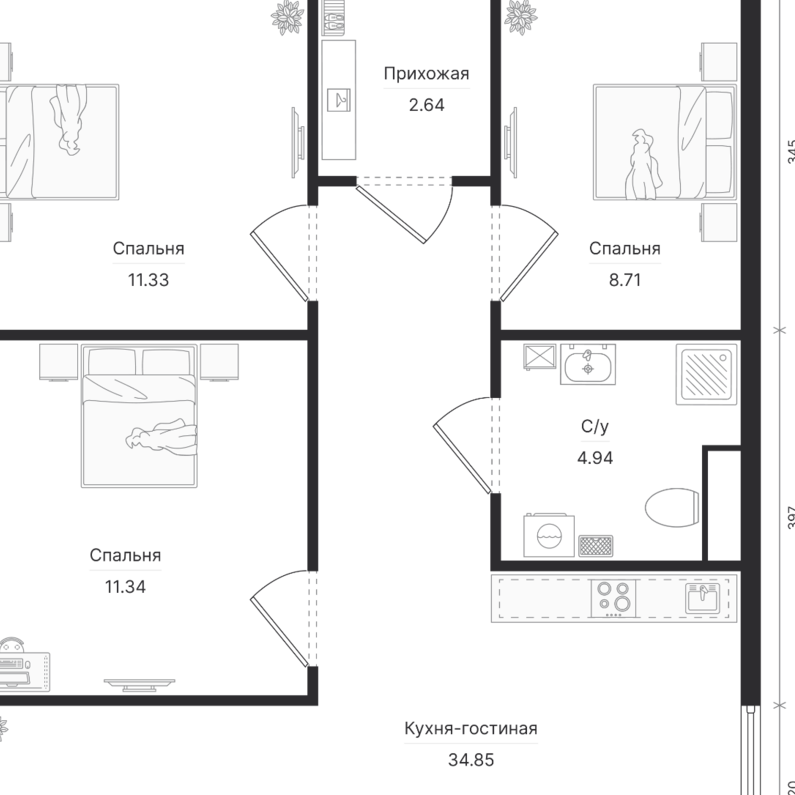
Просторный модульный дом Лофт Мод 95,2 м² — идеальное решение для большой семьи. В тщательно продуманной планировке гармонично сочетаются: просторная кухня-гостиная, удобная прихожая, три изолированные спальни и отдельный санузел. Панорамные окна создают ощущение простора и наполняют дом естественным светом, а большая терраса превращается в летнюю гостиную с полноценной зоной отдыха.
Планировка и размеры
- Общая площадь:95.2 м²
- Жилая площадь:71.2 м²
- Площадь террасы:24 м²
- Высота потолков:Наклонная часть 225 см, прямая часть 250 см
- Транспортные габариты:ДхШхВ: 840х345х315 3шт; 840х225х315
- Пятно застройки:12.6х8
- Кол-во мест в машине:4 модуля; 2 трала
Преимущества
- Функциональность. Эргономичная кухня гостиная, просторных 3 спальни с двуспальной кроватью, просторный санузел с душем и WC.
- Комфорт. Большая терраса для отдыха, интегрированные коммуникации — готов к заселению за 1 неделю.
Идеален для семьи 2–5 чел. или дачи.
Заказать
Включено в стоимость дома
Каждый дом поставляется в полностью готовом виде, с чистовой отделкой. Вам останется только расставить мебель и можно жить.
Экстерьер
Интерьер
Коммуникации, электрика, сантехника
Отопление
Контакты
Одел продаж Москва
- ЭкоМодХаус, г. Москва, Большой Каретный переулок Дом 20 строение 2 Переговорная, Офис 513
- +7-962-684-84-74
- Перейти в MAX
- sk.euroservice@mail.ru
Производство
- ЭкоМодХаус, Костромская обл. г.Буй, ул. Крайняя д.5, Офис 513
- +79626848474
- Перейти в MAX
- sk.euroservice@mail.ru
Что мы продаем
ЭкоМодХаус, г. Москва, Большой Каретный переулок Дом 20 строение 2 Переговорная




