Модульный дом Урбан Дом 25 — компактный современный вариант для загородной жизни полного цикла (30 м² общая площадь).
Планировка и размеры
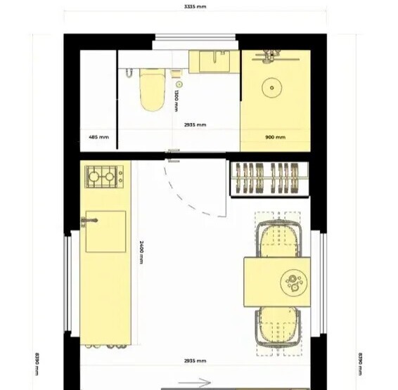
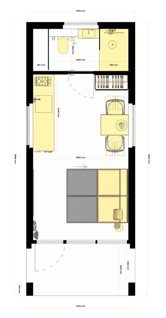
Зонирован на спальня комната (20,54 м²), санузел (4,35 м²) . Общие габариты: 10x3,33 м, высота — удобная для круглогодичного проживания.
Террасу заказывать не обязательно.
Преимущества
- Функциональность. Эргономичная кухня-гостиная,спальня с двуспальной кроватью, компактный санузел с душем и WC.
- Комфорт. Терраса для отдыха, интегрированные коммуникации — готов к заселению за 1 неделю.
Идеален для семьи 2 чел. или дачи.
Заказать
Включено в стоимость дома
Каждый дом поставляется в полностью готовом виде, с чистовой отделкой. Вам останется только расставить мебель и можно жить.
Экстерьер
Интерьер
Коммуникации, электрика, сантехника
Отопление
Контакты
Одел продаж Москва
- ЭкоМодХаус, г. Москва, Большой Каретный переулок Дом 20 строение 2 Переговорная, Офис 513
- +7-962-684-84-74
- sk.euroservice@mail.ru
Производство
- ЭкоМодХаус, Костромская обл. г.Буй, ул. Крайняя д.5, Офис 513
- +79626848474
- sk.euroservice@mail.ru
Что мы продаем
ЭкоМодХаус, г. Москва, Большой Каретный переулок Дом 20 строение 2 Переговорная









